アパート
オーナーチェンジ

中野区本町2丁目 アパート

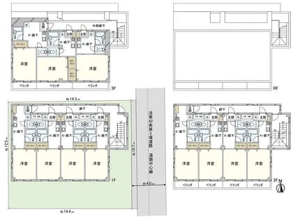
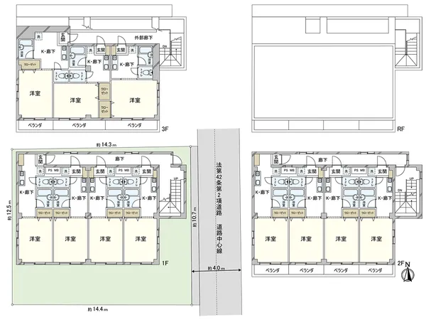
  • 間取図

  • 外観

  • 外観

  • 外観

  • エントランス

  • 集合郵便受け

  • 前庭

  • 駐輪場

  • 前面道路含む外観

  • 前面道路含む外観

  • 外観

  • 外観

  • 外観

  • エントランス

  • 集合郵便受け

  • 前庭

  • 駐輪場

  • 前面道路含む外観

  • 前面道路含む外観

  • 所在地

    東京都中野区本町2丁目 周辺地図

  • 交通

    東京メトロ丸ノ内線中野坂上駅 徒歩2分
    都営大江戸線中野坂上駅 徒歩4分

  • 価格

    2億8000万円

  • 想定利回り
    ?
    ※利回りは、販売価格に対する年間の賃料収入(共益費等を含む)の割合で、公租公課その他当該物件を維持するために必要な費用の控除前のものです。なお、想定賃料・想定利回りは、賃料相場をもとに空室部分の賃料を加え満室時を想定して算出したものです。

    3.6

  • 築年月
    (築年数)

    1997年9月築 (築28年)

  • 構造

    鉄骨造 地上3階建

  • 延床面積

    298.83m² (約90.39坪)

  • 建物種別

    アパート

三井のリハウス
中野坂上センター

TEL:0120-313-184

  • 所在地
  • 交通
  • 価格

    2億8000万円

  • 想定利回り
    ?
    ※利回りは、販売価格に対する年間の賃料収入(共益費等を含む)の割合で、公租公課その他当該物件を維持するために必要な費用の控除前のものです。なお、想定賃料・想定利回りは、賃料相場をもとに空室部分の賃料を加え満室時を想定して算出したものです。

    3.6%

  • 年間満室想定賃料
    ?
    ※賃料収入は、将来にわたって確実に得られることを保証するものではありません。

    10,080,000円

  • 現行利回り
    ?
    ※利回りは、販売価格に対する年間の賃料収入(共益費等を含む)の割合で、公租公課その他当該物件を維持するために必要な費用の控除前のものです。なお、想定賃料・想定利回りは、賃料相場をもとに空室部分の賃料 を加え満室時を想定して算出したものです。

  • 年間現行賃料
    ?
    ※賃料収入は、将来にわたって確実に得られることを保証するものではありません。

  • 建物種別

    一棟アパート

  • 現況

    賃貸中

  • 賃貸状況

    稼働戸数11 戸 / 総戸数11戸
    ※総戸数には住戸数以外の店舗等の戸数も含まれています。

  • 建物内の住戸数

    11戸

  • 各住戸の専有面積

    21.42㎡~27.56㎡

  • 延床面積

    298.83m² (約90.39坪)

  • 土地面積

    176.59m² (約53.41坪)
    ※セットバック約8.61m²を含む

  • 築年月
    (築年数)

    1997年9月築 (築28年)

  • 代表間取り

    1K

  • 構造

    鉄骨造 地上3階建

  • 駐車場

  • 土地権利

    所有権

  • バイク置場

  • 駐輪場

  • 地目

    宅地

  • 接道状況

    東側:幅員 約3.6m (私道)

  • 用途地域/建ぺい率/容積率

    第一種中高層住居専用地域 / 60% / 200%
    ※但し、前面道路幅員により容積率は160%に制限されます。

  • 都市計画

    市街化区域

  • 国土法届出要否

  • 備考

    賃貸中(賃貸借契約引継要)

  • 引渡時期

    相談

  • 取引態様

    仲介

  • 更新日

    2026年5月13日

  • 次回更新予定日

    2026年5月27日

周辺地図 Map

お問い合わせ先 Contact

物件No. FX3BDA05

三井のリハウス 中野坂上センター

TEL : 0120-313-184 TEL : 0120-313-184

営業時間

10:00~18:00 / 定休日:毎週火曜日・水曜日

住所

東京都中野区中央2-2-8 STNビル 1F

三井不動産リアルティ株式会社国土交通大臣(15)第777号

店舗ページ 店舗地図

この物件に近い条件の物件 Search condition

最近閲覧した物件 Recently viewed