神奈川県横浜市神奈川区白幡南町 周辺地図
神奈川県横浜市神奈川区白幡南町 周辺地図
東急東横線白楽駅 徒歩11分
東急東横線東白楽駅 徒歩12分
5980万円
7.1 %
2015年1月築 (築11年)
木造 地上2階建
79.90m² (約24.16坪)
アパート
横浜支店
リテール資産営業部
営業グループ
TEL:0120-195-668
神奈川県横浜市神奈川区白幡南町
周辺地図
神奈川県横浜市神奈川区の投資用不動産を探す
東急東横線白楽駅 徒歩11分
東急東横線 白楽駅の投資用不動産を探す
東急東横線東白楽駅 徒歩12分
東急東横線 東白楽駅の投資用不動産を探す
東急東横線 白楽駅の投資用不動産を探す
東急東横線 東白楽駅の投資用不動産を探す
5980万円
7.1%
4,284,000円
-
-
一棟アパート
賃貸中
稼働戸数5
戸 / 総戸数6戸
※総戸数には住戸数以外の店舗等の戸数も含まれています。
6戸
13.94㎡~13.94㎡
79.90m² (約24.16坪)
122.69m²
(約37.11坪)
2015年1月築 (築11年)
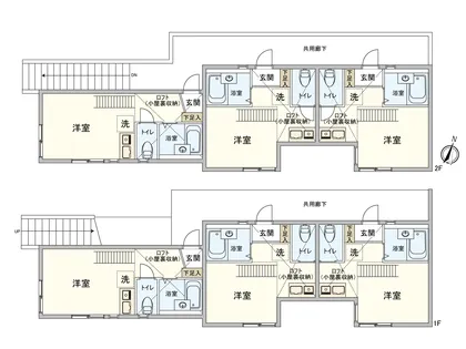
1K
木造 地上2階建
-
旧法借地権(賃借権)
借地料:21,000円/月、満了年月:
2033年11月
-
-
宅地
-
第一種低層住居専用地域
/
50%
/
100%
市街化区域
否
賃貸中(賃貸借契約引継要)
敷地は旧法借地権(借地期間:20年間|令和15年11月まで、借地料:月額21,000円)
相談
仲介
2026年4月13日
2026年4月27日
■ 東急東横線「白楽」駅 徒歩11分
東急東横線「東白楽」駅 徒歩12分
○ 敷地は旧法借地権
借地期間:20年間
満了年月:令和15年11月
借地料: 月額21,000円
○ 第一種低層住居専用地域内の閑静な住宅街
○ 木造スレート葺2階建
○ 総戸数6戸(1K×6戸)
○ 平成27年1月築
○ バス・トイレ別
○ シャワートイレあり
○ 全室ロフトあり
○ シューズボックス
○ エアコン
○ モニター付インターホン
※当部署は投資・事業用物件の専門部署です。物件の詳細につきましては担当/金澤までお気軽にお問い合わせください。
10:00~18:00 / 定休日:毎週火曜日・水曜日
よろしければ保存ボタンを選択してください。※保存後、以下の条件はマイページの「お知らせメール設定」より編集できます。
| エリア | 神奈川県 横浜市神奈川区 | 路 線 | 指定しない |
|---|---|---|---|
| 物件種別 | アパート | 価 格 | 5,000万円以上 ~ 7,000万円未満 |
| 利回り | 7%以上 ~ 8%未満 | 築年数 | 築10年以上~築15年未満 |
| 土地面積 | 100m²以上 ~ 200m²未満 | 延床面積 | 100m²未満 |
| 構 造 | 木造 | 土地権利 | 旧法借地権(賃借権) |
| 駅までの徒歩分数 | 10分以上 ~ 15分未満 |
マイページの「お知らせメール設定」よりご確認いただけます。
よろしければ保存ボタンを選択してください。
※保存後、以下の条件はマイページの「お知らせメール設定」より編集できます。
| エリア | 神奈川県 横浜市神奈川区 |
|---|---|
| 物件種別 | アパート |
| 価 格 | 5,000万円以上 ~ 7,000万円未満 |
| 利回り | 7%以上 ~ 8%未満 |
| 築年数 | 築10年以上~築15年未満 |
| 土地面積 | 100m²以上 ~ 200m²未満 |
| 延床面積 | 100m²未満 |
| 構 造 | 木造 |
| 土地権利 | 旧法借地権(賃借権) |
| 駅までの徒歩分数 | 10分以上 ~ 15分未満 |
マイページの「お知らせメール設定」よりご確認いただけます。
マイページの「保存した検索条件リスト」よりご確認いただけます。
検索条件にあてはまる物件情報をメールで受け取るには会員登録が必要となります。
マイページの「保存した検索条件リスト」よりご確認いただけます。
検索条件にあてはまる物件情報をメールで受け取るには会員登録が必要となります。
マイページの「保存した検索条件リスト」よりご確認いただけます。
検索条件にあてはまる物件情報をメールで受け取るには会員登録が必要となります。
マイページの「保存した検索条件リスト」よりご確認いただけます。
検索条件にあてはまる物件情報をメールで受け取るには会員登録が必要となります。