店舗・事務所
New

松戸市常盤平2丁目 店舗付住宅

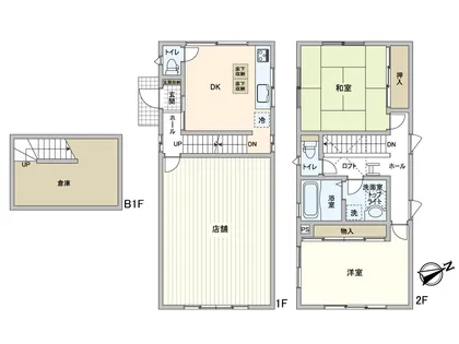
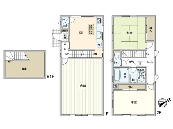
  • 間取図(平面図)

  • 外観

  • 外観

  • 外観

  • 前面道路

  • 和室

  • 和室

  • 洋室

  • 洋室

  • 浴室

  • 設備

  • 洗面室

  • 2階トイレ

  • ロフト

  • 店舗

  • 店舗

  • 倉庫

  • キッチン

  • キッチンコンロ

  • 1階トイレ

  • DK

  • DK

  • 店舗入口

  • 店舗入口

  • 外観

  • 外観

  • 外観

  • 前面道路

  • 和室

  • 和室

  • 洋室

  • 洋室

  • 浴室

  • 設備

  • 洗面室

  • 2階トイレ

  • ロフト

  • 店舗

  • 店舗

  • 倉庫

  • キッチン

  • キッチンコンロ

  • 1階トイレ

  • DK

  • DK

  • 店舗入口

  • 店舗入口

  • 所在地

    千葉県松戸市常盤平2丁目 周辺地図

  • 交通

    京成電鉄松戸線常盤平駅 徒歩9分

  • 価格

    2880万円

  • 想定利回り
    ?
    ※利回りは、販売価格に対する年間の賃料収入(共益費等を含む)の割合で、公租公課その他当該物件を維持するために必要な費用の控除前のものです。なお、想定賃料・想定利回りは、賃料相場をもとに空室部分の賃料を加え満室時を想定して算出したものです。

  • 築年月
    (築年数)

    1999年7月築 (築26年)

  • 構造

    その他 地下1階付 地上2階建

  • 延床面積

    109.72m² (約33.19坪)

  • 建物種別

    店舗・事務所

三井のリハウス
松戸センター

TEL:0120-996-231

  • 所在地

    千葉県松戸市常盤平2丁目 周辺地図
    千葉県松戸市の投資用不動産を探す

  • 交通
  • 価格

    2880万円

  • 想定利回り
    ?
    ※利回りは、販売価格に対する年間の賃料収入(共益費等を含む)の割合で、公租公課その他当該物件を維持するために必要な費用の控除前のものです。なお、想定賃料・想定利回りは、賃料相場をもとに空室部分の賃料を加え満室時を想定して算出したものです。

  • 年間満室想定賃料
    ?
    ※賃料収入は、将来にわたって確実に得られることを保証するものではありません。

  • 現行利回り
    ?
    ※利回りは、販売価格に対する年間の賃料収入(共益費等を含む)の割合で、公租公課その他当該物件を維持するために必要な費用の控除前のものです。なお、想定賃料・想定利回りは、賃料相場をもとに空室部分の賃料 を加え満室時を想定して算出したものです。

  • 年間現行賃料
    ?
    ※賃料収入は、将来にわたって確実に得られることを保証するものではありません。

  • 建物種別

    店舗・事務所

  • 現況

    居住中

  • 賃貸状況

    ※総戸数には住戸数以外の店舗等の戸数も含まれています。

  • 延床面積

    109.72m² (約33.19坪)

  • 土地面積

    99.17m² (約29.99坪)

  • 築年月
    (築年数)

    1999年7月築 (築26年)

  • 代表間取り

    2DK

  • 構造

    その他 地下1階付 地上2階建

  • 駐車場

  • 土地権利

    所有権

  • バイク置場

  • 駐輪場

  • 地目

    宅地

  • 接道状況

    北側:幅員 約10.0m (公道)

  • 用途地域/建ぺい率/容積率

    第二種低層住居専用地域 / 50% / 100%

  • 都市計画

    市街化区域

  • 国土法届出要否

  • 備考

    建物構造:木、鉄筋コンクリート造
    間取:2DK+店舗+倉庫

  • 引渡時期

    相談

  • 取引態様

    仲介

  • 更新日

    2026年4月23日

  • 次回更新予定日

    2026年5月7日

周辺地図 Map

お問い合わせ先 Contact

物件No. F74BDA0A

三井のリハウス 松戸センター

TEL : 0120-996-231 TEL : 0120-996-231

営業時間

10:00~18:00 / 定休日:毎週火曜日・水曜日 ※5/1(金)~5/6(水) GW休業期間

住所

千葉県松戸市松戸1178 イセウビル5F

三井不動産リアルティ株式会社国土交通大臣(15)第777号

店舗ページ 店舗地図

この物件に近い条件の物件 Search condition

最近閲覧した物件 Recently viewed