マンション(区分所有)
オーナーチェンジ

ライオンズプラザ新横浜

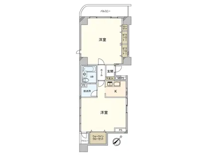
  • 間取図

  • 外観

  • 外観

  • 外観

  • ランドリールーム

  • ドライプール

  • 徒歩4分。

  • 徒歩2分。

  • 徒歩4分。

  • 徒歩13分。

  • 徒歩4分。

  • 徒歩13分。

  • 外観

  • 外観

  • 外観

  • ランドリールーム

  • ドライプール

  • 徒歩4分。

  • 徒歩2分。

  • 徒歩4分。

  • 徒歩13分。

  • 徒歩4分。

  • 徒歩13分。

  • 所在地

    神奈川県横浜市港北区新横浜1丁目 周辺地図

  • 交通

    横浜線新横浜駅 徒歩13分
    横浜市ブルーライン新横浜駅 徒歩13分
    東急新横浜線新横浜駅 徒歩13分

  • 価格

    2920万円

  • 想定利回り
    ?
    ※利回りは、販売価格に対する年間の賃料収入(共益費等を含む)の割合で、公租公課その他当該物件を維持するために必要な費用の控除前のものです。なお、想定賃料・想定利回りは、賃料相場をもとに空室部分の賃料を加え満室時を想定して算出したものです。

    6.5

  • 専有面積

    70.21m² (約21.23坪)

  • 間取り

    2K

  • 現況

    賃貸中

  • 築年月
    (築年数)

    1989年7月築 (築36年)

三井のリハウス
新横浜センター

TEL:0120-179-210

  • 所在地

    神奈川県横浜市港北区新横浜1丁目 周辺地図
    神奈川県横浜市港北区の投資用不動産を探す

  • 交通
  • 価格

    2920万円

  • 想定利回り
    ?
    ※利回りは、販売価格に対する年間の賃料収入(共益費等を含む)の割合で、公租公課その他当該物件を維持するために必要な費用の控除前のものです。なお、想定賃料・想定利回りは、賃料相場をもとに空室部分の賃料を加え満室時を想定して算出したものです。

    6.5%

  • 年間想定賃料
    ?
    ※賃料収入は、将来にわたって確実に得られることを保証するものではありません。

    1,900,800円

  • 現行利回り
    ?
    ※利回りは、販売価格に対する年間の賃料収入(共益費等を含む)の割合で、公租公課その他当該物件を維持するために必要な費用の控除前のものです。なお、想定賃料・想定利回りは、賃料相場をもとに空室部分の賃料 を加え満室時を想定して算出したものです。

  • 年間現行賃料
    ?
    ※賃料収入は、将来にわたって確実に得られることを保証するものではありません。

  • 管理費等

    20,430円/月

  • 修繕積立金

    16,290円/月

  • 専有面積

    70.21m² (約21.23坪)

  • 間取り

    2K

  • 築年月
    (築年数)

    1989年7月築 (築36年)

  • 階数/階建

    6階 / 地上10階 地下1階

  • 向き

    南西

  • バルコニー等面積

    バルコニー面積 8.74m²

  • 現況

    賃貸中

  • 駐車場

  • バイク置場

  • 駐輪場

  • 建物構造

    鉄骨鉄筋コンクリート造

  • 総戸数

    63戸

  • 管理会社

    大京アステージ

  • 管理形態

    全部委託

  • 管理員勤務形態

    日勤

  • 分譲会社

    (株)大京(新築分譲時における売主)

  • 施工会社

    (株)淺沼組

  • 設計会社

    (株)和田設計コンサルタント

  • 土地権利

    所有権

  • 備考

    賃貸中(賃貸借契約引継要)

  • 引渡時期

    即時

  • 取引態様

    仲介

  • 更新日

    2026年4月17日

  • 次回更新予定日

    2026年5月1日

周辺地図 Map

お問い合わせ先 Contact

物件No. F3DARA0C

三井のリハウス 新横浜センター

TEL : 0120-179-210 TEL : 0120-179-210

営業時間

10:00~18:00 / 定休日:毎週火曜日・水曜日 ※定休日や営業時間外のご対応等詳細につきましては、当店までお気軽にお問い合わせください ※5/1(金)~5/6(水) GW休業期間

住所

神奈川県横浜市港北区新横浜3-6-12 SD12ビル 1F

三井不動産リアルティ株式会社国土交通大臣(15)第777号

店舗ページ

この物件に近い条件の物件 Search condition

最近閲覧した物件 Recently viewed