東京都小金井市緑町2丁目 周辺地図
東京都小金井市緑町2丁目 周辺地図
中央本線東小金井駅 徒歩10分
中央本線武蔵小金井駅 徒歩18分
8980万円
6.5 %
1998年10月築 (築27年)
木造 地下1階付 地上3階建
212.70m² (約64.34坪)
アパート
三井のリハウス
武蔵小金井センター
TEL:0120-323-661
東京都小金井市緑町2丁目
周辺地図
東京都小金井市の投資用不動産を探す
中央本線東小金井駅 徒歩10分
中央本線 東小金井駅の投資用不動産を探す
中央本線武蔵小金井駅 徒歩18分
中央本線 武蔵小金井駅の投資用不動産を探す
中央本線 東小金井駅の投資用不動産を探す
中央本線 武蔵小金井駅の投資用不動産を探す
8980万円
6.5%
5,858,280円
-
-
一棟アパート
賃貸中
稼働戸数2
戸 / 総戸数5戸
※総戸数には住戸数以外の店舗等の戸数も含まれています。
5戸
37.26㎡~63.34㎡
212.70m² (約64.34坪)
102.86m²
(約31.11坪)
1998年10月築 (築27年)
2DK
木造 地下1階付 地上3階建
有
所有権
-
-
宅地
南側:幅員 約12.0m (公道)
第一種住居地域
/
60%
/
200%
市街化区域
否
・賃貸中(賃貸借契約引継要)
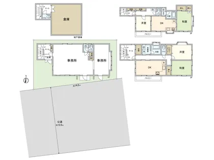
・間取詳細/2DK×2+事務所×2+地下倉庫
相談
仲介
2026年4月10日
2026年4月24日
-物件のおすすめポイント-
▼立地
・JR中央線「東小金井」駅 徒歩10分
※Suica専用改札「nonowa口」は徒歩9分
●Suicaを含めた交通系ICカードが利用可能
●磁気定期券、きっぷは利用不可
●Suicaを含むICカードによる改札内コンコースの通り抜け不可
●nonowa口営業時間:6:45~22:00
・JR中央線「武蔵小金井」駅 徒歩18分
▼建物の特徴
・木造地下1階付地上3階建
・2DK×2+事務所×2+地下倉庫
・駐車スペース1台分 ※車種による制限有り
・約12m公道に面しています
▼満室賃貸中(2025年10月6日現在)
・現況年額賃料 5,858,280円
・現況月額賃料 488,190円
・現況利回り 6.52%
▼周辺環境
・徒歩10分圏内に生活利便施設がございます
■ご希望の住まい探しをお手伝いします ━━━━━ ・・・
物件の詳細・ご相談はお気軽にお問い合わせください。
10:00~18:00 / 定休日:毎週火曜日・水曜日
よろしければ保存ボタンを選択してください。※保存後、以下の条件はマイページの「お知らせメール設定」より編集できます。
| エリア | 東京都 小金井市 | 路 線 | 指定しない |
|---|---|---|---|
| 物件種別 | アパート | 価 格 | 7,000万円以上 ~ 1億円未満 |
| 利回り | 6%以上 ~ 7%未満 | 築年数 | 築20年以上 |
| 土地面積 | 100m²以上 ~ 200m²未満 | 延床面積 | 100m²以上 ~ 300m²未満 |
| 構 造 | 木造 | 土地権利 | 所有権 |
| 駅までの徒歩分数 | 10分以上 ~ 15分未満 |
マイページの「お知らせメール設定」よりご確認いただけます。
よろしければ保存ボタンを選択してください。
※保存後、以下の条件はマイページの「お知らせメール設定」より編集できます。
| エリア | 東京都 小金井市 |
|---|---|
| 物件種別 | アパート |
| 価 格 | 7,000万円以上 ~ 1億円未満 |
| 利回り | 6%以上 ~ 7%未満 |
| 築年数 | 築20年以上 |
| 土地面積 | 100m²以上 ~ 200m²未満 |
| 延床面積 | 100m²以上 ~ 300m²未満 |
| 構 造 | 木造 |
| 土地権利 | 所有権 |
| 駅までの徒歩分数 | 10分以上 ~ 15分未満 |
マイページの「お知らせメール設定」よりご確認いただけます。
マイページの「保存した検索条件リスト」よりご確認いただけます。
検索条件にあてはまる物件情報をメールで受け取るには会員登録が必要となります。
マイページの「保存した検索条件リスト」よりご確認いただけます。
検索条件にあてはまる物件情報をメールで受け取るには会員登録が必要となります。
マイページの「保存した検索条件リスト」よりご確認いただけます。
検索条件にあてはまる物件情報をメールで受け取るには会員登録が必要となります。
マイページの「保存した検索条件リスト」よりご確認いただけます。
検索条件にあてはまる物件情報をメールで受け取るには会員登録が必要となります。