大阪府大阪市住之江区泉1丁目 周辺地図
大阪府大阪市住之江区泉1丁目 周辺地図
大阪メトロ四つ橋線住之江公園駅 徒歩13分
南港ポートタウン線住之江公園駅 徒歩13分
南港ポートタウン線平林駅 徒歩14分
2480万円
-
1994年8月築 (築31年)
鉄骨造 地上4階建
181.20m² (約54.81坪)
社宅・寮
三井のリハウス
西田辺センター
TEL:0120-14-5531
大阪府大阪市住之江区泉1丁目
周辺地図
大阪府大阪市住之江区の投資用不動産を探す
大阪メトロ四つ橋線住之江公園駅 徒歩13分
大阪メトロ四つ橋線 住之江公園駅の投資用不動産を探す
南港ポートタウン線住之江公園駅 徒歩13分
南港ポートタウン線 住之江公園駅の投資用不動産を探す
南港ポートタウン線平林駅 徒歩14分
南港ポートタウン線 平林駅の投資用不動産を探す
大阪メトロ四つ橋線 住之江公園駅の投資用不動産を探す
南港ポートタウン線 住之江公園駅の投資用不動産を探す
南港ポートタウン線 平林駅の投資用不動産を探す
2480万円
-
-
-
-
社宅・寮
空家
※総戸数には住戸数以外の店舗等の戸数も含まれています。
181.20m² (約54.81坪)
53.58m²
(約16.20坪)
1994年8月築 (築31年)
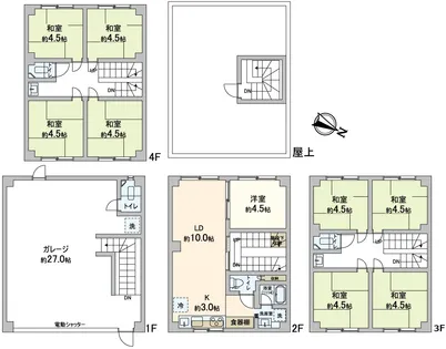
9LDK
鉄骨造 地上4階建
有
所有権
-
-
宅地
北東側:幅員 約6.0m (公道)
準工業地域
/
60%
/
200%
市街化区域
否
-
相談
仲介
2026年4月16日
2026年4月30日
-物件のおすすめポイント-
▼立地
・大阪メトロ四つ橋線『住之江公園』駅徒歩13分
・南港ポートタウン線『住之江公園』駅徒歩13分
・南港ポートタウン線『平林』駅徒歩14分
・前面道路幅員は東側約6m
▼特徴
・建物面積約54.8坪(181.2平米)の鉄骨造4階建
・2階にはキッチン、浴室・洗面室などがございます
・3階、4階は和室が計8室ございます
・1階のビルトインガレージは大きめの工事車両などを駐車することができます
※本物件は規定の建ぺい率・容積率をオーバーしており、再建築にあたり同規模の建築物は建築できません。
10:00~18:00 / 定休日:毎週火曜日・水曜日 ※5/1(金)~5/6(水) GW休業期間
よろしければ保存ボタンを選択してください。※保存後、以下の条件はマイページの「お知らせメール設定」より編集できます。
| エリア | 大阪府 大阪市住之江区 | 路 線 | 指定しない |
|---|---|---|---|
| 物件種別 | 社宅・寮 | 価 格 | 1,000万円以上 ~ 3,000万円未満 |
| 利回り | 指定しない | 築年数 | 築20年以上 |
| 土地面積 | 100m²未満 | 延床面積 | 100m²以上 ~ 300m²未満 |
| 構 造 | 鉄骨造 | 土地権利 | 所有権 |
| 駅までの徒歩分数 | 10分以上 ~ 15分未満 |
マイページの「お知らせメール設定」よりご確認いただけます。
よろしければ保存ボタンを選択してください。
※保存後、以下の条件はマイページの「お知らせメール設定」より編集できます。
| エリア | 大阪府 大阪市住之江区 |
|---|---|
| 物件種別 | 社宅・寮 |
| 価 格 | 1,000万円以上 ~ 3,000万円未満 |
| 築年数 | 築20年以上 |
| 土地面積 | 100m²未満 |
| 延床面積 | 100m²以上 ~ 300m²未満 |
| 構 造 | 鉄骨造 |
| 土地権利 | 所有権 |
| 駅までの徒歩分数 | 10分以上 ~ 15分未満 |
マイページの「お知らせメール設定」よりご確認いただけます。
マイページの「保存した検索条件リスト」よりご確認いただけます。
検索条件にあてはまる物件情報をメールで受け取るには会員登録が必要となります。
マイページの「保存した検索条件リスト」よりご確認いただけます。
検索条件にあてはまる物件情報をメールで受け取るには会員登録が必要となります。
マイページの「保存した検索条件リスト」よりご確認いただけます。
検索条件にあてはまる物件情報をメールで受け取るには会員登録が必要となります。
マイページの「保存した検索条件リスト」よりご確認いただけます。
検索条件にあてはまる物件情報をメールで受け取るには会員登録が必要となります。