広島県広島市安佐北区口田2丁目 周辺地図
広島県広島市安佐北区口田2丁目 周辺地図
芸備線安芸矢口駅 徒歩6分
1180万円
-
1979年9月築 (築46年)
木造 地上2階建
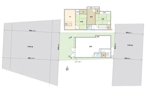
73.71m² (約22.29坪)
店舗・事務所
三井のリハウス
祇園新道センター
TEL:0120-321-679
広島県広島市安佐北区口田2丁目
周辺地図
広島県広島市安佐北区の投資用不動産を探す
芸備線安芸矢口駅 徒歩6分 芸備線 安芸矢口駅の投資用不動産を探す 芸備線 安芸矢口駅の投資用不動産を探す
1180万円
-
-
-
-
店舗・事務所
空家
※総戸数には住戸数以外の店舗等の戸数も含まれています。
73.71m² (約22.29坪)
77.30m²
(約23.38坪)
1979年9月築 (築46年)
2SDK
木造 地上2階建
有
所有権
-
-
宅地
西側:幅員 約12.9m (公道) 、 東側:幅員 約6.1m (公道)
第一種低層住居専用地域
/
50%
/
100%
市街化区域
否
増築未登記部分(2階ダイニング部分)約12.4平米あり
即時
仲介
2026年5月1日
2026年5月15日
-物件のおすすめポイント-
▼立地
・芸備線「安芸矢口」駅まで徒歩6分(約470メートル)
・スーパー、ドラッグストアが徒歩圏内
毎日のお買い物に便利です
▼建物の特徴
・店舗兼住宅
1階部分は店舗として利用可能です
・両面道路のため陽当たり、風通し良好
■ご希望の住まい探しをお手伝いします ━━━━━ ・・・
物件の詳細・ご相談はお気軽にお問い合わせください。
【お住みかえをご検討中のお客様へ】
■ご自宅の『売却』も三井のリハウスにお任せください
・「売却が先か購入が先か」買替えたいけど、何から始めたら良いのか分からない。
・所有不動産の相場を把握しておきたい。
・自宅の住宅ローンが残っているので、無理のない資金計画を相談したい。
お住まいの購入から売却まで、お客様のご事情に合わせてトータルサポートいたします。
まずはフリーコールにて、ご所有不動産の概要をお申し付けください。
(お取扱いできない地域もございますのでご了承ください)
『無料査定のお申込みは』
三井のリハウス 祇園新道センター
フリーコール 0120-321-679
10:00~18:00 / 定休日:毎週火曜日・水曜日 ※5/1(金)~5/6(水) GW休業期間
よろしければ保存ボタンを選択してください。※保存後、以下の条件はマイページの「お知らせメール設定」より編集できます。
| エリア | 広島県 広島市安佐北区 | 路 線 | 指定しない |
|---|---|---|---|
| 物件種別 | 店舗・事務所 | 価 格 | 1,000万円以上 ~ 3,000万円未満 |
| 利回り | 指定しない | 築年数 | 築20年以上 |
| 土地面積 | 100m²未満 | 延床面積 | 100m²未満 |
| 構 造 | 木造 | 土地権利 | 所有権 |
| 駅までの徒歩分数 | 5分以上 ~ 10分未満 |
マイページの「お知らせメール設定」よりご確認いただけます。
よろしければ保存ボタンを選択してください。
※保存後、以下の条件はマイページの「お知らせメール設定」より編集できます。
| エリア | 広島県 広島市安佐北区 |
|---|---|
| 物件種別 | 店舗・事務所 |
| 価 格 | 1,000万円以上 ~ 3,000万円未満 |
| 築年数 | 築20年以上 |
| 土地面積 | 100m²未満 |
| 延床面積 | 100m²未満 |
| 構 造 | 木造 |
| 土地権利 | 所有権 |
| 駅までの徒歩分数 | 5分以上 ~ 10分未満 |
マイページの「お知らせメール設定」よりご確認いただけます。
マイページの「保存した検索条件リスト」よりご確認いただけます。
検索条件にあてはまる物件情報をメールで受け取るには会員登録が必要となります。
マイページの「保存した検索条件リスト」よりご確認いただけます。
検索条件にあてはまる物件情報をメールで受け取るには会員登録が必要となります。
マイページの「保存した検索条件リスト」よりご確認いただけます。
検索条件にあてはまる物件情報をメールで受け取るには会員登録が必要となります。
マイページの「保存した検索条件リスト」よりご確認いただけます。
検索条件にあてはまる物件情報をメールで受け取るには会員登録が必要となります。