マンション(区分所有)
オーナーチェンジ

宮の森パークマンション

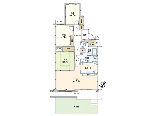
  • 間取図

  • 外観写真

  • 外観写真

  • 外観写真

  • 駐車スペース

  • 駐輪場

  • ゴミ捨て場

  • 前面道路

  • 前面道路

  • 外観写真

  • 外観写真

  • 駐車スペース

  • 徒歩9分

  • 徒歩11分

  • 徒歩10分

  • 徒歩6分

  • 徒歩6分

  • 徒歩7分

  • 徒歩8分

  • 徒歩6分

  • 徒歩7分

  • 徒歩8分

  • 外観写真

  • 外観写真

  • 外観写真

  • 駐車スペース

  • 駐輪場

  • ゴミ捨て場

  • 前面道路

  • 前面道路

  • 外観写真

  • 外観写真

  • 駐車スペース

  • 徒歩9分

  • 徒歩11分

  • 徒歩10分

  • 徒歩6分

  • 徒歩6分

  • 徒歩7分

  • 徒歩8分

  • 徒歩6分

  • 徒歩7分

  • 徒歩8分

  • 所在地

    北海道札幌市中央区宮の森一条8丁目 周辺地図

  • 交通

    札幌市営東西線西28丁目駅 徒歩9分

  • 価格

    1680万円

  • 現行利回り
    ?
    ※利回りは、販売価格に対する年間の賃料収入(共益費等を含む)の割合で、公租公課その他当該物件を維持するために必要な費用の控除前のものです。なお、想定賃料・想定利回りは、賃料相場をもとに空室部分の賃料 を加え満室時を想定して算出したものです。

    8.2

  • 専有面積

    99.36m² (約30.05坪)

  • 間取り

    3LDK

  • 現況

    賃貸中

  • 築年月
    (築年数)

    1989年3月築 (築37年)

三井のリハウス
札幌駅北口センター

TEL:0120-321-551

  • 所在地

    北海道札幌市中央区宮の森一条8丁目 周辺地図
    北海道札幌市中央区の投資用不動産を探す

  • 交通
  • 価格

    1680万円

  • 想定利回り
    ?
    ※利回りは、販売価格に対する年間の賃料収入(共益費等を含む)の割合で、公租公課その他当該物件を維持するために必要な費用の控除前のものです。なお、想定賃料・想定利回りは、賃料相場をもとに空室部分の賃料を加え満室時を想定して算出したものです。

  • 年間想定賃料
    ?
    ※賃料収入は、将来にわたって確実に得られることを保証するものではありません。

  • 現行利回り
    ?
    ※利回りは、販売価格に対する年間の賃料収入(共益費等を含む)の割合で、公租公課その他当該物件を維持するために必要な費用の控除前のものです。なお、想定賃料・想定利回りは、賃料相場をもとに空室部分の賃料 を加え満室時を想定して算出したものです。

    8.2%

  • 年間現行賃料
    ?
    ※賃料収入は、将来にわたって確実に得られることを保証するものではありません。

    1,380,000円 (調査日:2025年9月19日)

  • 管理費等

    15,470円/月

  • 修繕積立金

    10,056円/月

  • 専有面積

    99.36m² (約30.05坪)

  • 間取り

    3LDK

  • 築年月
    (築年数)

    1989年3月築 (築37年)

  • 階数/階建

    1階 / 地上3階

  • 向き

    南東

  • バルコニー等面積

    バルコニー面積 13.53m²

  • 現況

    賃貸中

  • 駐車場

    空無

  • バイク置場

  • 駐輪場

  • 建物構造

    鉄筋コンクリート造

  • 総戸数

    18戸

  • 管理会社

    宮の森パーク・マンション管理組合

  • 管理形態

    全部委託

  • 管理員勤務形態

    日勤

  • 分譲会社

    三井不動産(株)(新築分譲時における売主)

  • 施工会社

    三井建設(株)

  • 設計会社

    三井建設(株)

  • 土地権利

    所有権

  • 備考

    賃貸中(賃貸借契約引継要)

  • トランクルーム

    トランクルーム:空きあり

  • 引渡時期

    相談

  • 取引態様

    仲介

  • 更新日

    2026年4月6日

  • 次回更新予定日

    2026年4月20日

周辺地図 Map

お問い合わせ先 Contact

物件No. F9BARA06

三井のリハウス 札幌駅北口センター

TEL : 0120-321-551 TEL : 0120-321-551

営業時間

10:00~18:00 / 定休日:毎週水曜日・日曜日 ※5/1(金)~5/6(水) GW休業期間

住所

北海道札幌市北区北七条西4丁目1-2 KDX札幌ビル1階

三井不動産リアルティ札幌株式会社北海道知事石狩(8)第5813号

店舗ページ 店舗地図

この物件に近い条件の物件 Search condition

最近閲覧した物件 Recently viewed