東京都新宿区市谷本村町 周辺地図
東京都新宿区市谷本村町 周辺地図
都営新宿線曙橋駅 徒歩5分
都営大江戸線牛込柳町駅 徒歩6分
東京メトロ丸ノ内線四谷三丁目駅 徒歩11分
1億9800万円
2.1 %
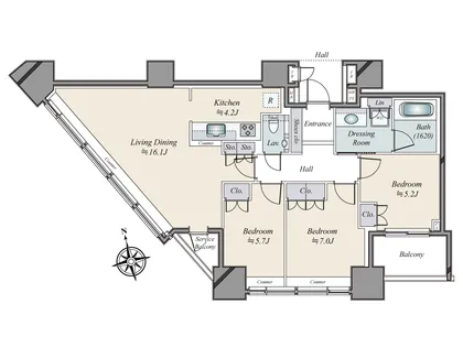
83.35m²
(約25.21坪)
3LDK
賃貸中
2007年11月築 (築18年)
三井のリハウス
四谷センター
TEL:0120-659-434
東京都新宿区市谷本村町
周辺地図
東京都新宿区の投資用不動産を探す
都営新宿線曙橋駅 徒歩5分
都営新宿線 曙橋駅の投資用不動産を探す
都営大江戸線牛込柳町駅 徒歩6分
都営大江戸線 牛込柳町駅の投資用不動産を探す
東京メトロ丸ノ内線四谷三丁目駅 徒歩11分
東京メトロ丸ノ内線 四谷三丁目駅の投資用不動産を探す
都営新宿線 曙橋駅の投資用不動産を探す
都営大江戸線 牛込柳町駅の投資用不動産を探す
東京メトロ丸ノ内線 四谷三丁目駅の投資用不動産を探す
1億9800万円
2.1%
4,200,000円
2.1%
-
27,861円/月
25,421円/月
83.35m²
(約25.21坪)
3LDK
2007年11月築 (築18年)
3階 / 地上38階 地下2階 建
南
バルコニー面積 5.16m²
賃貸中
空無
-
-
鉄筋コンクリート造
426戸
野村不動産パートナーズ(株)
全部委託
日勤
野村不動産(株)、三井不動産(株)、三菱地所(株)(新築分譲時における売主)
(株)大林組
(株)大林組
所有権
賃貸中(賃貸借契約引継要)
トランクルーム:空きあり 面積:約0.00m² (確認日:2025年7月6日)
相談
仲介
2026年5月14日
2026年5月28日
■ THE CENTER TOKYO━━━━━・・・・・
○ 三井不動産(株)、野村不動産(株)、三菱地所(株)旧分譲
○ (株)大林組旧施工
○ ホテルライクな内廊下設計
○ 充実した共用部分
(ゲストルーム、キッチンスタジオ、キッズルーム、ラウンジ、フィットネス&サウナ等)
■ 仕様 ━━━━━・・・・・
○ 二重床・二重天井
○ ペット用足洗いスペース
○ 24時間有人管理体制
○ トリプル認証セキュリティ
■ 室内の特徴 ━━━━━・・・・・
○ 南・西の角部屋につき日当たり・通風良好
○ 83.35平米・3LDK
○ リビングダイニングに床暖房有り
○ ウォークインクローゼット有り
○ 主寝室約7.0帖
■ 利回り ━━━━━・・・・・
現況表面利回:2.1% 現況賃料:年額 4,200,000円
※表記利回りは、販売価格に対する年間の賃料収入の割合で、公租公課その他当該物件を維持するために必要な費用の控除前です。なお、賃料収入は将来に渡って確実に得られることを保証するものではありません。
10:00~18:00 / 定休日:毎週火曜日・水曜日
東京都新宿区四谷3-1-3 第一富澤ビル1F
三井不動産リアルティ株式会社国土交通大臣(15)第777号
よろしければ保存ボタンを選択してください。※保存後、以下の条件はマイページの「お知らせメール設定」より編集できます。
| エリア | 東京都 新宿区 | 路 線 | 指定しない |
|---|---|---|---|
| 物件種別 | マンション(区分所有) | 価 格 | 1億円以上 ~ 2億円未満 |
| 利回り | 3%未満 | 築年数 | 築15年以上~築20年未満 |
| 土地面積 | 指定しない | 延床面積 | 100m²未満 |
| 構 造 | 鉄筋コンクリート造 | 土地権利 | 所有権 |
| 駅までの徒歩分数 | 5分以上 ~ 10分未満 |
マイページの「お知らせメール設定」よりご確認いただけます。
よろしければ保存ボタンを選択してください。
※保存後、以下の条件はマイページの「お知らせメール設定」より編集できます。
| エリア | 東京都 新宿区 |
|---|---|
| 物件種別 | マンション(区分所有) |
| 価 格 | 1億円以上 ~ 2億円未満 |
| 利回り | 3%未満 |
| 築年数 | 築15年以上~築20年未満 |
| 延床面積 | 100m²未満 |
| 構 造 | 鉄筋コンクリート造 |
| 土地権利 | 所有権 |
| 駅までの徒歩分数 | 5分以上 ~ 10分未満 |
マイページの「お知らせメール設定」よりご確認いただけます。
マイページの「保存した検索条件リスト」よりご確認いただけます。
検索条件にあてはまる物件情報をメールで受け取るには会員登録が必要となります。
マイページの「保存した検索条件リスト」よりご確認いただけます。
検索条件にあてはまる物件情報をメールで受け取るには会員登録が必要となります。
マイページの「保存した検索条件リスト」よりご確認いただけます。
検索条件にあてはまる物件情報をメールで受け取るには会員登録が必要となります。
マイページの「保存した検索条件リスト」よりご確認いただけます。
検索条件にあてはまる物件情報をメールで受け取るには会員登録が必要となります。