東京都文京区本郷6丁目 周辺地図
東京都文京区本郷6丁目 周辺地図
東京メトロ南北線東大前駅 徒歩6分
都営大江戸線本郷三丁目駅 徒歩8分
東京メトロ丸ノ内線本郷三丁目駅 徒歩10分
2億4900万円
-
207.35m²
(約62.72坪)
ワンルーム
空家
1984年11月築 (築41年)
三井のリハウス
文京春日センター
TEL:0120-429-309
東京都文京区本郷6丁目
周辺地図
東京都文京区の投資用不動産を探す
東京メトロ南北線東大前駅 徒歩6分
東京メトロ南北線 東大前駅の投資用不動産を探す
都営大江戸線本郷三丁目駅 徒歩8分
都営大江戸線 本郷三丁目駅の投資用不動産を探す
東京メトロ丸ノ内線本郷三丁目駅 徒歩10分
東京メトロ丸ノ内線 本郷三丁目駅の投資用不動産を探す
東京メトロ南北線 東大前駅の投資用不動産を探す
都営大江戸線 本郷三丁目駅の投資用不動産を探す
東京メトロ丸ノ内線 本郷三丁目駅の投資用不動産を探す
2億4900万円
-
-
-
-
75,680円/月
71,540円/月
207.35m²
(約62.72坪)
ワンルーム
1984年11月築 (築41年)
2階 / 地上11階 地下1階 建
東
-
空家
-
-
-
鉄骨鉄筋コンクリート造
42戸
(株)東急コミュニティー
全部委託
巡回
(株)青木建設(新築分譲時における売主)
(株)青木建設
(株)青木建設
所有権
-
相談
仲介
2026年4月17日
2026年5月1日
三井のリハウスHPをご覧いただきありがとうございます。
文京区本郷6丁目にございます「モンテベルデ第二東大前」のご紹介です。
※本物件は事務所区画、2区画(2階部分・3階部分)同時売買となります。表示の販売価格は2区画の合計額です。
※概要欄記載の内容は3階部分および共通部分となります。
-物件のおすすめポイント-
▼立地
・3路線2駅利用可
・東京メトロ南北線「東大前」駅徒歩6分
・都営大江戸線「本郷三丁目」駅徒歩8分
・東京メトロ丸ノ内線「本郷三丁目」駅徒歩10分
▼マンションの特徴
・本郷通りに面する立地
・前面道路対面側は東京大学
※本物件は事務所区画、2区画(2階部分・3階部分)同時売買となります。表示の販売価格は2区画の合計額です。
※概要欄記載の内容は3階部分および共通部分となります。
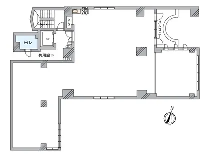
【3階部分について】
・管理費等:17,010円(月額)
・修繕積立金:18,800円(月額)
・間取:ワンルーム
・専有面積:58.59平米(登記簿)
・所在階:3階
・向き:東
・現況:空室
本物件各区画には登記簿上、附属建物があります。
【2階部分】
種類:便所、構造:鉄筋コンクリート造1階建、床面積:2階部分4.79平米
【3階部分】
種類:便所、構造:鉄筋コンクリート造1階建、床面積:3階部分1.99平米
10:00~18:00 / 定休日:毎週火曜日・水曜日 ※5/1(金)~5/6(水) GW休業期間
よろしければ保存ボタンを選択してください。※保存後、以下の条件はマイページの「お知らせメール設定」より編集できます。
| エリア | 東京都 文京区 | 路 線 | 指定しない |
|---|---|---|---|
| 物件種別 | 店舗・事務所(区分所有) | 価 格 | 2億円以上 ~ 3億円未満 |
| 利回り | 指定しない | 築年数 | 築20年以上 |
| 土地面積 | 指定しない | 延床面積 | 100m²以上 ~ 300m²未満 |
| 構 造 | 鉄骨鉄筋コンクリート造 | 土地権利 | 所有権 |
| 駅までの徒歩分数 | 5分以上 ~ 10分未満 |
マイページの「お知らせメール設定」よりご確認いただけます。
よろしければ保存ボタンを選択してください。
※保存後、以下の条件はマイページの「お知らせメール設定」より編集できます。
| エリア | 東京都 文京区 |
|---|---|
| 物件種別 | 店舗・事務所(区分所有) |
| 価 格 | 2億円以上 ~ 3億円未満 |
| 築年数 | 築20年以上 |
| 延床面積 | 100m²以上 ~ 300m²未満 |
| 構 造 | 鉄骨鉄筋コンクリート造 |
| 土地権利 | 所有権 |
| 駅までの徒歩分数 | 5分以上 ~ 10分未満 |
マイページの「お知らせメール設定」よりご確認いただけます。
マイページの「保存した検索条件リスト」よりご確認いただけます。
検索条件にあてはまる物件情報をメールで受け取るには会員登録が必要となります。
マイページの「保存した検索条件リスト」よりご確認いただけます。
検索条件にあてはまる物件情報をメールで受け取るには会員登録が必要となります。
マイページの「保存した検索条件リスト」よりご確認いただけます。
検索条件にあてはまる物件情報をメールで受け取るには会員登録が必要となります。
マイページの「保存した検索条件リスト」よりご確認いただけます。
検索条件にあてはまる物件情報をメールで受け取るには会員登録が必要となります。