マンション(区分所有)
オーナーチェンジ

コープオリンピア

  • エレベーターホール

  • 屋上

  • エレベーターホール

  • 屋上

  • 所在地

    東京都渋谷区神宮前6丁目 周辺地図

  • 交通

    東京メトロ副都心線明治神宮前駅 徒歩1分
    山手線原宿駅 徒歩2分
    東京メトロ銀座線表参道駅 徒歩10分

  • 価格

    3億円

  • 想定利回り
    ?
    ※利回りは、販売価格に対する年間の賃料収入(共益費等を含む)の割合で、公租公課その他当該物件を維持するために必要な費用の控除前のものです。なお、想定賃料・想定利回りは、賃料相場をもとに空室部分の賃料を加え満室時を想定して算出したものです。

    1.2

  • 専有面積

    90.86m² (約27.48坪)

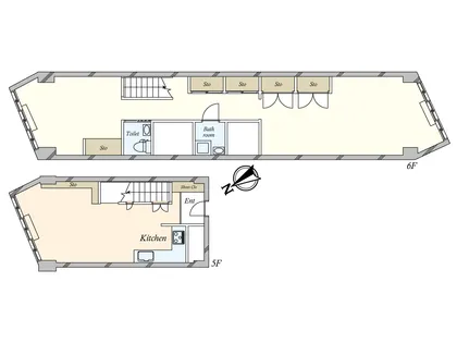
  • 間取り

    1K

  • 現況

    賃貸中

  • 築年月
    (築年数)

    1965年3月築 (築60年)

三井のリハウス
渋谷センター

TEL:0120-923-731

  • 所在地

    東京都渋谷区神宮前6丁目 周辺地図
    東京都渋谷区の投資用不動産を探す

  • 交通
  • 価格

    3億円

  • 想定利回り
    ?
    ※利回りは、販売価格に対する年間の賃料収入(共益費等を含む)の割合で、公租公課その他当該物件を維持するために必要な費用の控除前のものです。なお、想定賃料・想定利回りは、賃料相場をもとに空室部分の賃料を加え満室時を想定して算出したものです。

    1.2%

  • 年間想定賃料
    ?
    ※賃料収入は、将来にわたって確実に得られることを保証するものではありません。

    3,600,000円

  • 現行利回り
    ?
    ※利回りは、販売価格に対する年間の賃料収入(共益費等を含む)の割合で、公租公課その他当該物件を維持するために必要な費用の控除前のものです。なお、想定賃料・想定利回りは、賃料相場をもとに空室部分の賃料 を加え満室時を想定して算出したものです。

    1.2%

  • 年間現行賃料
    ?
    ※賃料収入は、将来にわたって確実に得られることを保証するものではありません。

    300,000円

  • 管理費等

    32,816円/月

  • 修繕積立金

    0円/月

  • その他費用

    給湯費実費 880 円/月 給水基本料,給水実費 950 円/月 空調費 57,120 円/月

  • 専有面積

    90.86m² (約27.48坪)

  • 間取り

    1K

  • 築年月
    (築年数)

    1965年3月築 (築60年)

  • 階数/階建

    5階 / 地上11階 地下1階

  • 向き

    北東

  • バルコニー等面積

  • 現況

    賃貸中

  • 駐車場

  • バイク置場

  • 駐輪場

  • 建物構造

    鉄骨鉄筋コンクリート造

  • 総戸数

    171戸

  • 管理会社

  • 管理形態

    自主管理

  • 管理員勤務形態

    常勤

  • 分譲会社

    東京コープ(株)(新築分譲時における売主)

  • 施工会社

    清水建設(株)

  • 設計会社

    清水建設(株)

  • 土地権利

    所有権

  • 備考

    賃貸中(賃貸借契約引継要)

  • 引渡時期

    即時

  • 取引態様

    仲介

  • 更新日

    2026年2月6日

  • 次回更新予定日

    2026年2月20日

周辺地図 Map

お問い合わせ先 Contact

物件No. FBIBTA03

三井のリハウス 渋谷センター

TEL : 0120-923-731 TEL : 0120-923-731

営業時間

10:00~18:00 / 定休日:毎週水曜日

住所

東京都渋谷区桜丘町3-4 渋谷サクラステージ SAKURAサイド 4F

三井不動産リアルティ株式会社国土交通大臣(15)第777号

店舗ページ 店舗地図

この物件に近い条件の物件 Search condition

最近閲覧した物件 Recently viewed